聯系我們
18903178757
- 地址:
- 河北省泊頭市富鎮開發區
- 傳真:
- 0317-8041117
- Q Q:
- 28505225
低壓噴吹脈沖袋式除塵器
(1) DSM型低壓噴吹脈沖袋式除塵器
DSM型低壓噴吹脈沖袋式除塵器結構特點是采用嵌人式脈沖閥,增大噴吹管直徑,以 噴嘴取代傳統的噴孔,從而降低噴吹壓力,噴吹壓力為0.2?0.3MPa,增加壓縮空氣氣量。 采用上進風方式,含塵氣體由中箱體上部進人,依靠擋板進人濾袋。如圖6-61所示。其主 要尺寸和技術性能見表6-66。

濾袋與花板之間用帶環的濾袋口密封,噴吹管與氣包之間有軟連接,換袋時可將其豎起。
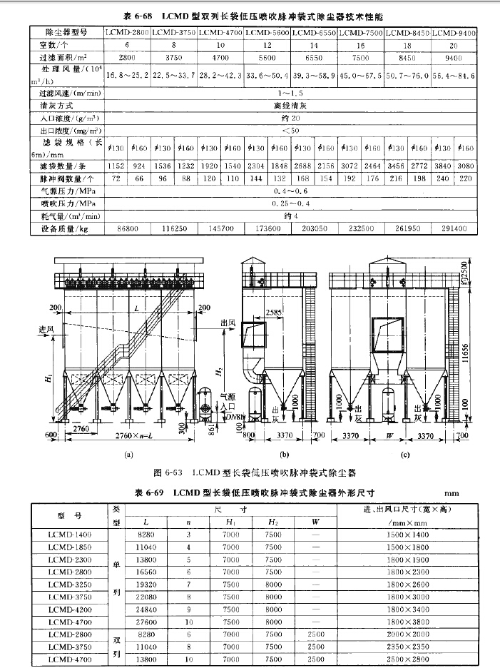
(2) LCMD型長袋低壓噴吹脈沖袋式除塵器
長袋低壓噴吹脈沖袋式除塵器特點是濾袋長,數量多,設備緊湊,可處理較大量的含 塵氣體。濾袋長度可達6m,直徑一般為對30?160mm。袋口不設引射文氏管。結構見 圖 6-62。

LCMD型長袋低壓噴吹脈沖袋式除塵器分為單列和雙列兩種,其技術性能見表6-67和 表6-68,外形尺寸見圖6-63和表6-69。




上一篇:氣環反吹袋式除塵器
下一篇:ZX型機械振打袋式除塵器
